Beschrijving
Tweekapper in kindvriendelijke wijk met garage
Welkom aan De Wandelingen: een praktisch en gezinsvriendelijke twee-onder-een-kapwoning met garage, carport en een zonnige achtertuin. Gelegen in een rustige, brede straat met speelvoorzieningen direct achter de woning, woont u hier ideaal met alle voorzieningen binnen handbereik. Met een woonoppervlakte van 112 m², vier volwaardige slaapkamers en een lichte woonkamer met erker biedt deze woning volop leefruimte. De praktische indeling, bijkeuken en aangebouwde garage zorgen voor extra comfort, terwijl de ruime oprit plaats biedt aan meerdere auto’s. De op het noorden gelegen tuin is dankzij de gunstige ligging heerlijk zonnig en voorzien van een overkapping.
De woning is gelegen aan de geliefde en ruim opgezette straat de Wandelingen op loopafstand van sporthal “De Lange Slagen”, het sportpark van Wijhe ’92, scholen en een kinderopvang. Deze straat kenmerkt zich door haar rustige karakter en brede opzet, wat direct bijdraagt aan een aangenaam en ontspannen woonklimaat. Een extra uniekheid is dat achtergelegen een speeltuin is met een schommel, glijbanen, klimrek en een tafeltennistafel. Daarnaast bent u binnen enkele minuten in het centrum van Wijhe, met knusse straatjes, sfeervolle cafés en een gevarieerd winkelaanbod. Voor natuurliefhebbers is Wijhe een waar paradijs: De omliggende natuurgebieden, zoals de prachtige uiterwaarden van de IJssel en de nabijgelegen bossen, bieden talloze mogelijkheden voor wandel- en fietstochten. Kortom: wonen op deze plek, in de Wandelingen, betekent genieten van een rustige en kindvriendelijke woonomgeving, met de natuur en alle gemakken binnen handbereik.
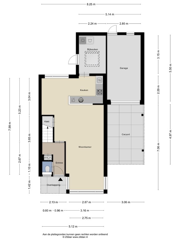
Parkeer uw auto op de ruime oprit met plaats voor maar liefst drie auto’s, waarvan één overdekt. U betreedt de woning via een praktische hal met toilet, trapopgang naar de verdieping en toegang tot de woonkamer. De royale en lichte woonkamer beschikt aan de voorzijde over een sfeervolle zithoek met erker. Deze ruimte loopt naadloos over in het eetgedeelte met open keuken. De keuken is uitgerust met een vaatwasser, combi-magnetron, koelkast, afzuigkap en een vierpits gaskookplaat. Aansluitend bevindt zich een praktische bijkeuken met wasmachineaansluiting. Door het verwijderen van een tussenmuur en het moderniseren van de keuken creëert u eenvoudig een open en eigentijdse woonkeuken. Daarnaast biedt de woning de mogelijkheid om de achterpui te vergroten en aan te bouwen (naast de bijkeuken), waardoor een nog ruimere woonkeuken kan ontstaan. De ruime garage met carport is aangebouwd, maar niet binnendoor bereikbaar.
Bij aankomst op de eerste verdieping treffen we een vaste trap naar de tweede verdieping, drie slaapkamers en de badkamer. Aan de achterzijde bevinden zich een kleinere slaapkamer en een ruime slaapkamer met praktische kastenwand. Aan de voorzijde is de royale masterbedroom gesitueerd, evenals de badkamer, welke is voorzien van een toilet, inloopdouche en wastafelmeubel. Daarnaast beschikt deze badkamer over elektrische vloerverwarming.
Middels een vaste trap bereikt u de tweede verdieping. Hier bevindt zich een overloop met toegang tot een vierde, goed bemeten slaapkamer. Deze ruimte is tevens uitermate geschikt als werk- of hobbykamer.
Ondanks de ligging op het noorden is de achtertuin verrassend zonnig en biedt deze een heerlijke, ruime plek om samen met vrienden en familie te genieten. De houten overkapping zorgt ervoor dat u ook op warme dagen comfortabel in de schaduw kunt zitten. Dankzij de betegeling is de tuin bovendien onderhoudsvriendelijk. Een groot pluspunt is de aanwezigheid van een achterom. Via deze toegang loopt u zo door naar een aangrenzende speelplaats, waar (klein)kinderen zich kunnen vermaken met diverse speeltoestellen.
Bereikbaarheid
Ondanks de landelijke ligging is Wijhe uitstekend bereikbaar. Het dorp beschikt over een eigen NS-station met goede verbindingen naar steden zoals Zwolle en Deventer, waardoor u binnen een mum van tijd op uw bestemming bent. Dankzij deze centrale ligging geniet u van het beste van twee werelden: de rust van het platteland en de dynamiek van de stad binnen handbereik.
Bijzonderheden
• Woonoppervlak: 112 m²
• Overig inpandige ruimte: 15 m²
• Gebouwgebonden buitenruimte: 18 m²
• Perceeloppervlak: 262 m²
• Energielabel C
• Kindvriendelijke woonwijk met speelplaats achtergelegen
• Garage met carport en ruime oprit
Een woning die ruimte, rust en mogelijkheden moeiteloos combineert op een goede locatie in Wijhe. Hier woont u comfortabel vandaag én met volop kansen voor morgen. Plan snel een bezichtiging en ervaar zelf de sfeer, ruimte en het woongenot dat deze fijne gezinswoning te bieden heeft.
Plattegronden
183544573_1636481_de_wa_begane_grond_first_design_20260323_652e7b.jpg
183544573_1636481_de_wa_eerste_verdiepi_first_design_20260323_85c3f4.jpg
183544573_1636481_de_wa_tweede_verdiepi_first_design_20260323_39bc64.jpg
183544573_1636481_de_wa_overkapping_first_design_20260323_7b8908.jpg