Beschrijving
Ruime instapklare tussenwoning met jaren ’30 elementen
Gelegen op een goede locatie in de wijk “De Peperkamp” staat deze ruime, instapklare tussenwoning met een Spaans/Portugees tintje. Een sfeervolle doorzonwoonkamer met kleurrijke accenten, landelijke keuken, praktische bijkeuken, vier slaapkamers en een nette achtertuin met gezellig barretje maken deze woning ideaal voor een brede doelgroep.
De ligging in een kindvriendelijke woonwijk is een groot pluspunt. Aan de voorzijde van de woning bevindt zich een groenperk dat fungeert als rotonde, waardoor u geniet van een vrij uitzicht. Ook de centrale ligging in Wijhe is uitstekend. Binnen enkele minuten bent u in het centrum of wandelt u in het bosrijke landgoed ’t Gelder. In de wijk vindt u bovendien een kinderspeeltuin en basisschool OBS De Wije, beide op slechts één minuut loopafstand. Ideale voorzieningen én fijne speelplekken voor kinderen. Via het nabijgelegen bruggetje bereikt u eenvoudig de sportvelden en de gezellige kinderboerderij met speelveld.
Via de gedeelde en groene voortuin komt u bij de voordeur met sfeervolle jaren ’30-luifel. U treedt binnen in een nette hal met stijlvolle trapopgang, voorzien van trapbekleding geïnspireerd op de Azulejos, en een toilet met keramische patroontegels. Vervolgens bereikt u de lichte doorzonwoonkamer met sierbalkenplafond. Aan de voorzijde bevindt zich de zithoek, die naadloos overloopt in de eethoek met aansluitend de open keuken. Deze landelijke, klassieke keuken met paneeldeuren, retro wandtegels en donker granieten blad heeft een tijdloze en robuuste uitstraling. Verder is de keuken uitgerust met diverse inbouwapparatuur, waaronder een 4-pits gasfornuis, afzuigkap en vaatwasser. Aansluitend vindt u de bijkeuken met wasmachineaansluiting, extra opbergruimte en een ingebouwde oven.
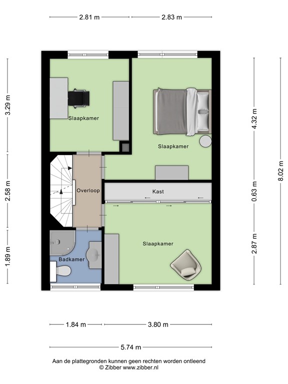
Op de eerste verdieping bevindt zich een ruime overloop met drie slaapkamers en de badkamer. Aan de voorzijde ligt een royale slaapkamer met inbouwkast en een warme uitstraling door de bordeauxrode tinten. De nette badkamer is voorzien van een douchecabine, wastafel, toilet en designradiator. Aan de achterzijde vindt u de masterbedroom en een derde, kleinere slaapkamer.
Via een vaste trap bereikt u de zolderverdieping met praktische knieschotten. Dankzij de dakkapel aan de voorzijde is hier een royale en lichte vierde slaapkamer gerealiseerd, die tevens uitstekend geschikt is als werk- of hobbyruimte.
De groene achtertuin is, ondanks de ligging op het noorden, verrassend zonnig en sfeervol. Hier kunt u met familie en vrienden genieten aan het barretje of ontspannen met een boek in de schaduw. Verder is er een praktische berging voor fietsen en tuinspullen en een achterom.
Ondanks de landelijke ligging is Wijhe uitstekend bereikbaar. Met een eigen NS-station en goede verbindingen naar steden zoals Zwolle en Deventer bent u in een mum van tijd op uw bestemming. Dankzij deze centrale ligging geniet u van het beste van twee werelden: de rust van het platteland én de dynamiek van de stad binnen handbereik.
Bijzonderheden:
• Tussenwoning
• Woonoppervlak van 114 m²
• Externe bergruimte: 7 m²
• Perceel van 157 m²
• Nette afwerking
• Courante ligging
• Energielabel C
• Grotendeels voorzien van HR++ glas (begane grond en eerste verdieping, behalve één raam in bijkeuken en de tweede verdieping)
Deze tussenwoning combineert karakter met comfort en biedt alles wat u zoekt: een lichte woonkamer, sfeervolle keuken, vier slaapkamers en een zonnige achtertuin met gezellig barretje. Dankzij de kindvriendelijke ligging in de wijk “De Peperkamp”, met school, speeltuin en sportvoorzieningen om de hoek, is dit een heerlijke plek om op te groeien. Daarbij woont u centraal in Wijhe met zowel de rust van de natuur als de dynamiek van de stad binnen handbereik. Nieuwsgierig? Neem dan snel contact op.
Plattegronden
177256669_1580085_disse_begane_grond_first_design_20250924_13d4ed.jpg
177256669_1580085_disse_eerste_verdiepi_first_design_20250924_02a1d4.jpg
177256669_1580085_disse_tweede_verdiepi_first_design_20250924_c00aae.jpg
177256669_1580085_disse_berging_first_design_20250924_a28a2b.jpg