Beschrijving
Unieke kans vrije ligging aan doodlopende straat grenzend aan park ‘Het Nieuwe Plantsoen’
Stap uw voordeur uit en loop zo park ‘Het Nieuwe Plantsoen’ in. Aan het eind van de doodlopende Roelofsbeldstraat ligt dit royale geïnspireerde herenhoekhuis. Instapklaar, met veel privacy, een rustige ligging en een ruim woonoppervlak, maakt deze woning tot een unieke mogelijkheid in deze straat. Daarnaast is de woning voorzien van zonnepanelen, volledig geïsoleerd, uitgerust met airco en beschikt daarmee over energielabel A.
De straat heeft een centrale ligging in Deventer, met alle voorzieningen in de nabijheid. Aan de voorzijde ligt een grasveld met tafeltennistafel, een speeltuin en op loopafstand bevindt zich ook een pannakooi. Kortom: een ideale woonwijk voor kinderen. Daarnaast ligt de woning direct aan ‘Het Nieuwe Plantsoen’, een groen stadspark dat stamt uit het begin van de 20e eeuw. Ontworpen door landschapsarchitect Leonard Springer (ook een bekende straatnaam in de Vijfhoek), herbergt het park een 48 meter hoge neorenaissance-watertoren uit 1893. Verder vindt u er een speelplek, meerdere kolken en een hertenkamp.
Parkeer uw auto direct voor de woning op twee eigen parkeerplaatsen. De woningen hebben een verhoogde ligging, waardoor u via een klein opstapje bij de voordeur en een zonnig zithoekje op het zuidwesten komt. U betreedt de woning in een ruime hal met meterkast, toilet met fontein, trapkast, trapopgang naar de eerste verdieping en doorgang naar de woonkamer. Aan de voorzijde bevindt zich een gezellige zithoek met ruime raampartijen en vrij uitzicht over het grasveld. Deze loopt naadloos over in de lichte open keuken. De ruime keuken is voorzien van een gasfornuis, afzuigkap, koelkast, combi-oven en vaatwasser. Daarnaast beschikt de keuken over een royaal eiland met massief blad, met veel werkruimte en zitgelegenheid. De woonkamer/keuken is voorzien van airco voor extra comfort. Vanuit de keuken heeft u een fantastisch uitzicht op het plantsoen.
Op de eerste verdieping vindt u een ruime overloop met daaraan drie slaapkamers en de badkamer. Aan de achterzijde liggen twee passende slaapkamers. De derde slaapkamer, de masterbedroom, ligt aan de voorzijde en is royaal (3,13 m x 5,78 m) en licht, en voorzien van airco. De badkamer beschikt over een wastafelmeubel, toilet, ligbad, inloopdouche en designradiator.
Via een vaste trap bereikt u de tweede verdieping met een zeer ruime overloop. Hier bevinden zich de cv-opstelling, mechanische ventilatie, wasmachineaansluiting en voldoende bergruimte achter de knieschotten. Daarnaast is er op deze verdieping een vierde ruime slaapkamer, eveneens met grote raampartijen en airco. Dankzij het fantastische uitzicht is dit ook een ideale werk- of studeerkamer.
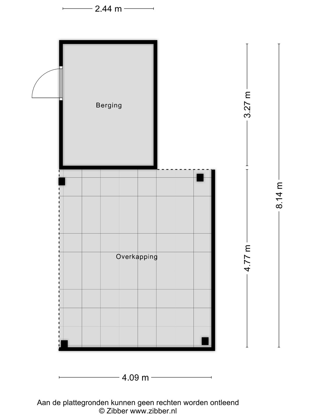
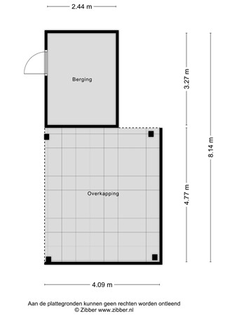
De ruime achtertuin ligt op het noordoosten en is voorzien van een vijver (vissen ter overname), overkapping en praktische houten berging. Gedurende de dag kunt u op meerdere plekken genieten van de zon en rust. De ligging is uniek: de linkerzijde grenst direct aan park ‘Het Nieuwe Plantsoen’, waardoor u veel privacy heeft. De achtertuin is tevens bereikbaar via de zijkant met een eigen poort.
Deventer is een prachtige Hanzestad aan de IJssel. Met een historisch en authentiek stadscentrum met gezellige kroegjes en restaurants is de binnenstad de perfecte plek voor een avondje uit. Daarnaast kunt u met mooi weer genieten van de IJssel en haar prachtige uiterwaarden. De stad ligt zeer centraal, met uitvalswegen via de A1 richting Almelo en Apeldoorn, met een directe verbinding naar de Randstad. Ook reizen met de trein gaat gemakkelijk: binnen 1 uur en 20 minuten bent u op Schiphol.
Kenmerken:
• Herenhoekhuis
• Woonoppervlak: 162 m²
• Externe bergruimte: 8 m²
• Perceel: 263 m²
• Energielabel A, zonnepanelen, airco’s
• Ligging in doodlopende, kindvriendelijke straat
• Nabij alle voorzieningen en naast park ‘Het Nieuwe Plantsoen’
Wonen op deze plek is een voorrecht dat niet vaak wordt aangeboden. Met ‘Het Nieuwe Plantsoen’ letterlijk naast de deur, een royale hoekwoning met vier slaapkamers en energielabel A, twee eigen parkeerplaatsen en een rustige kindvriendelijke straat, biedt deze woning alles wat u zoekt. Privacy, ruimte, groen en modern wooncomfort komen hier samen. De laatste verkoop in deze straat dateert van jaren geleden, een duidelijk teken van hoe geliefd deze plek is. Dit is uw moment toe te slaan. Wacht niet, zulke kansen zijn zeldzaam.