Beschrijving
Misschien herkent u deze woning aan de Eendrachtstraat meteen. Jarenlang was dit een welbekend begrip in Olst als de bloemenzaak van de familie Hollegien. Deze vrijstaande jaren ’50-woning is een uniek object, mede dankzij de indrukwekkende aangebouwde kas die tal van mogelijkheden biedt. Of u nu een groot gezin heeft, een praktijk, kapsalon of webshop aan huis wilt realiseren, of juist behoefte heeft aan een royale hobby- of speelruimte: hier kan het allemaal. De woning beschikt daarnaast over een ruime achtertuin met overkapping en berging, ideaal om heerlijk buiten te genieten. De ligging is bovendien gunstig, met het centrum en alle voorzieningen op korte loopafstand.
Gelegen aan de rivier de IJssel ligt het charmante dorp Olst. Het dorp staat bekend om zijn groene en waterrijke omgeving, rust en gemoedelijke sfeer. Met uitgestrekte uiterwaarden, prachtige wandel- en fietsroutes en een actief verenigingsleven is het een ideale plek voor zowel gezinnen als rustzoekers. In het dorp vindt u diverse voorzieningen zoals supermarkten, winkels, basisscholen en sportfaciliteiten. Ook zijn er gezellige horecagelegenheden en wordt er regelmatig iets georganiseerd voor jong en oud. Dankzij het eigen treinstation zijn steden als Deventer en Zwolle snel en gemakkelijk bereikbaar. Daarnaast zorgen de goede uitvalswegen voor een vlotte verbinding met de rest van de regio. Olst combineert landelijk wonen met een prettige bereikbaarheid en biedt daarmee een aantrekkelijke woonomgeving.
Kom kijken in dit multifunctionele woonhuis:
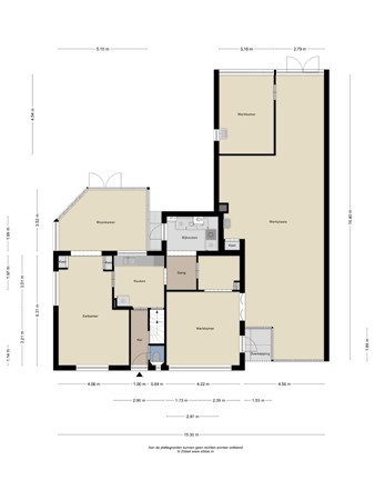
Via de entree betreedt u de ruime hal, voorzien van een toilet, trapopgang naar de eerste verdieping en toegang tot de gesloten keuken. Deze keuken heeft een centrale positie in de woning en is eenvoudig, maar praktisch ingericht met voldoende werk- en kastruimte. Vanuit het aanrecht heeft u een prettig zicht op de serre, wat zorgt voor een open en lichte beleving. De linker deur vanuit de keuken leidt naar de royale woonkamer, momenteel ingericht als eetkamer. De aangrenzende serre vormt een lichte verlenging van deze ruimte en is ingericht als zithoek. Dankzij de grote raampartijen geniet u hier van veel daglicht en een fijne verbinding met de tuin. Vanuit de keuken bereikt u tevens het rechtergedeelte van de woning, wat deze woning bijzonder veelzijdig maakt. Hier bevindt zich een tussenhal met toegang tot de bijkeuken, een praktische tussenkamer en aansluitend een werkkamer en de voormalige etalageruimte. Deze ruimte herinnert aan het verleden als bloemenzaak en biedt volop mogelijkheden voor werken aan huis of het uitoefenen van een hobby. Vanuit de etalage betreedt u een absoluut uniek onderdeel van de woning: de royale kas van maar liefst 108 m². Deze multifunctionele ruimte is een zeldzaamheid bij woningen nabij het centrum van Olst en leent zich uitstekend voor uiteenlopende doeleinden. Denk aan een kapsalon of praktijk aan huis, opslagruimte voor een webshop, atelier, hobbyruimte of zelfs een grote speelruimte voor kinderen. De kas biedt een zee aan ruimte en licht en vormt daarmee een bijzonder waardevolle toevoeging aan het geheel. Aan de achterzijde bevindt zich bovendien nog een separate werkkamer, ideaal voor administratie of als rustige werkplek.
Op de eerste verdieping komt u uit op een ruime overloop met toegang tot maar liefst vijf slaapkamers en de badkamer. Aan de voorzijde van de woning bevinden zich twee royale slaapkamers, evenals de badkamer, welke is voorzien van een inloopdouche en een wastafelmeubel. Aan de achterzijde treft u drie goed bemeten slaapkamers, elk met een prettige lichtinval. Eén van deze kamers biedt toegang tot een ruim, maar eenvoudig uitgevoerd dakterras. Tot slot is via een vlizotrap nog een praktische bergzolder bereikbaar, ideaal voor het opbergen van seizoensspullen.
Onderhoudsvriendelijk, zonnig en ruim: deze kernwoorden kenmerken deze tuin. Aan de linkerzijde van de woning bevindt zich een ruime oprit met parkeergelegenheid voor drie voertuigen. Bovendien kunt u met de auto praktisch de gehele tuin bereiken. Mocht u bezoek krijgen of een grote camper hebben? Ook aan de rechterzijde naast de kas is ruimte voor een drietal voertuigen op eigen parkeerplaatsen. Daarnaast pas hier ook een camper. Aan de linkerzijde in de tuin is een royale carport aanwezig, ideaal voor de autoliefhebber, hobbyist of als extra opslagruimte. Daarnaast beschikt de tuin over een eenvoudige, vrijstaande metalen berging. De ligging op het noorden vormt geen enkel bezwaar. Dankzij de royale diepte en breedte van het perceel zijn er volop mogelijkheden voor het creëren van diverse zitplekken, zowel in de zon als in de schaduw. Hierdoor kunt u op ieder moment van de dag genieten van de buitenruimte.
Kenmerken:
• Vrijstaande woning
• Woonoppervlak: 158 m²
• Overige inpandige ruimte: 108 m²
• Externe bergruimte: 12 m²
• Perceel: 618 m²
• Energielabel E
• Praktische kas
• Ligging nabij alle voorzieningen
Een unieke en veelzijdige vrijstaande woning op een geliefde locatie in Olst. Met volop ruimte, karakter en een uitzonderlijke kas biedt dit object eindeloze mogelijkheden voor wonen, werken en genieten. Een zeldzame kans voor wie op zoek is naar vrijheid, flexibiliteit en een woning met toekomstperspectief. Hier komt alles samen. Bent u nieuwsgierig, neem dan snel contact op.
Ter attentie: De woning heeft een woonbestemming. Binnen deze bestemming is het onder voorwaarden mogelijk om aan huis een bedrijf te voeren. Afhankelijk van de aard en omvang van de activiteiten kan hiervoor een omgevingsvergunning vereist zijn. Het gebruik dient altijd ondergeschikt te blijven aan de woonfunctie en te voldoen aan het geldende bestemmingsplan en de gemeentelijke regels.