Beschrijving
IDEAAL FAMILIEHUIS IN EEN GROENE EN RUSTIGE OMGEVING
Ruime en royale twee-onder-een-kapwoning in de kindvriendelijke wijk De Krijtenberg in Wijhe. Met een kleine 210 m² woonoppervlak (208 m² ), zes slaapkamers, twee badkamers en een zonnige tuin op het zuidoosten aan natuurpark ‘Woeste Wijhe’, biedt deze woning op een perceel van 350 m², volop ruimte, comfort en toekomstbestendigheid. Dankzij de slaapkamer en badkamer op de begane grond is levensloopbestendig wonen mogelijk, terwijl de luxe woonkeuken en het energielabel A zorgen voor modern wooncomfort.
UNIEKE VERBOUWING EN EXTRA RUIMTE
In 2017 is de benedenetage verbouwd en uitgebreid. De achtergevel werd verplaatst waardoor er ruimte voor een woonkeuken ontstond. Daarbij is een aluminium pui met schuifdeuren geplaatst, inclusief een uitschuifbare luifel/zonnescherm. De garage werd verbouwd tot slaapkamer met fontein, badkamer en toilet. Vanuit de slaapkamer kun je de dag beginnen met een kopje koffie op bed en uitzicht op de kerktoren van Boerhaar. Boven de carport is trouwens bij aanvang van de bouw direct een extra kamer met bergzolder gerealiseerd. Dit alles bij elkaar zorgt voor aanzienlijk meer leefruimte en maakt deze woning écht onderscheidend binnen hetzelfde rijtje twee-onder-een-kapwoningen aan de Grutto.
RUIMTE VOOR IEDEREEN
De woning beschikt over een lichte woonkamer met erker, sier-gashaard en pvc-vloer met vloerverwarming. De royale woonkeuken met kookeiland en luxe inbouwapparatuur vormt het hart van het huis. Vanuit de schuifpui stap je zo de zonnige achtertuin in, waar je geniet van rust, privacy en veel groen. Op de begane grond bevindt zich daarnaast een slaapkamer met airco en een deur naar de tuin en een moderne badkamer met toilet. Ideaal voor logees, werken aan huis of gelijkvloers wonen. Indien gewenst is deze ruimte ook uitstekend in te richten als werkkamer.
VERDIEPINGEN VOL MOGELIJKHEDEN
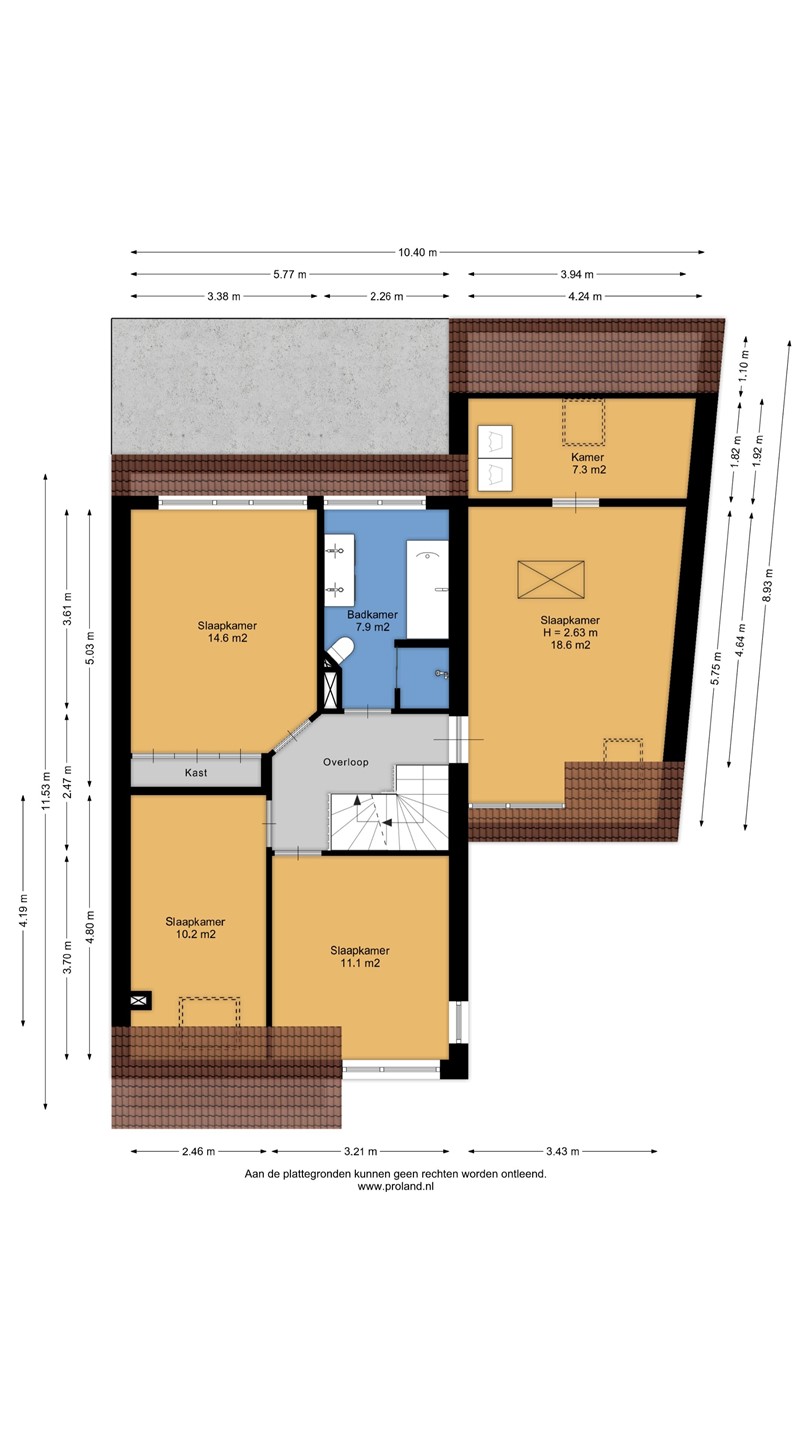
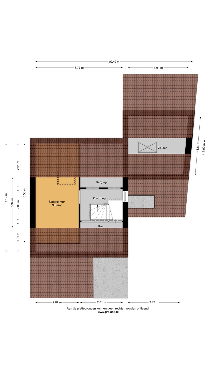
De eerste verdieping telt vier ruime slaapkamers en een tweede badkamer met ligbad, inloopdouche, toilet en wastafelmeubel. De master bedroom biedt toegang tot een vlizozolder en beschikt daarnaast over een extra kamer die geschikt is als inloopkast of wasruimte. Op de tweede verdieping vind je nog een volwaardige zesde slaapkamer en veel bergruimte.
BUITENLEVEN EN GEMAK
De achtertuin op het zuidoosten is groen en sfeervol aangelegd, met een overkapping en een berging. Onder de overkapping kun je heerlijk genieten met familie en vrienden. Vanuit de tuin kijk je uit op groen en ligt het natuurpark praktisch in het verlengde. Parkeren doe je op eigen oprit met plek voor drie auto’s, een carport en een laadpunt voor een elektrische auto.
MOGELIJKHEDEN OMBOUW NAAR HOOGWAARDIGE BERGING
De voormalige berging is momenteel omgebouwd tot een luxe slaapkamer met badkamer. Wanneer je deze ruimte niet als slaapvertrek wenst te gebruiken, kan deze – na enige aanpassing – uiteraard weer worden ingericht als hoogwaardige berging. In dat geval beschikt je nog steeds over een woning met circa 180 m² woonoppervlak.
BELANGRIJKSTE KENMERKEN:
- Woonoppervlak: 208 m²
- Perceel: 350 m²
- Blijvend vrij gelegen aan de achterzijde
- Zes slaapkamers, twee badkamers, drie toiletten
- Slaapkamer met badkamer en airco op de begane grond
- Luxe woonkeuken met kookeiland
- Energielabel A
- Achtertuin op het zuidoosten, grenzend aan groen en natuurpark “Woeste Wijhe"
- Oprit met carport en laadpunt voor een elektrische auto
WONEN EN LEVEN IN DE KRIJTENBERG
De Krijtenberg is een ruim opgezette en jonge woonwijk met meerdere speeltuinen, veel groen en een natuurspeeltuin direct achter de woning. De wijk ligt dicht bij het buitengebied en toch vlak bij het centrum van Wijhe. Wijhe is een charmant dorp aan De IJssel en gelegen tussen Zwolle (+/- 15 km.) en Deventer (+/- 18 km.) in. Dit dorp combineert rust en ruimte met een levendige dorpskern vol winkels en horeca. Met het NS treinstation vlakbij zijn er goede verbindingen naar Zwolle en Deventer en ben je bovendien snel in de stad.
Ben je op zoek naar een woning waar ruimte, comfort en rust samenkomen? Waar kinderen zorgeloos buiten kunnen spelen en waar je nu én in de toekomst comfortabel woont? Plan dan vandaag nog een bezichtiging van Grutto 39 in Wijhe.